18678117114
产品特点
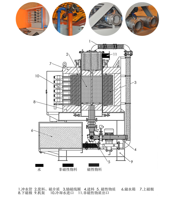
水冷自动浆料电磁磁选机是一种新型高效除铁机。通过循环泵使去离子水在空心铜管内循环,带走通电铜管产生的热量。
基于这种特殊结构,水冷电磁浆料自动除铁机具有以下优点:



运作流程
>> 接通电源装置,打开进浆阀和出浆阀
>> 关闭回浆阀和排铁阀,打开充磁装置。
>> 几分钟后(可根据需要自行设定),关闭进浆阀和出浆阀,打开回浆阀,将除铁机中剩余的浆料通过回浆阀排出
>> 断磁,关闭进浆阀、出浆阀和回浆阀
>> 打开排铁阀,将吸附在磁介质中的含铁物质排出。
适用范围
非金属:石英、长石、高岭土等矿物的提纯除杂。
黑色金属:赤铁矿、假象赤铁矿、褐铁矿、菱铁矿、铬铁矿、锰矿等。
有色金属:黑钨矿与榴石等矿物的分离。
稀有金属:钽铌矿、独居石等矿物的回收。
其他行业:钢铁矿、发电厂的废水处理,处理被污染的化工原料。
* 更多参数可致电18678117114了解
* 产量视料浓度压力而定
* 产品参数因更新升级可能会造成偏差,请以实物为准